三相異步振動電機簡介
三相異步振動電機為各類機械通用型激振源,如振動給料機、振動輸送機、振動放礦機、振動落砂機、振動篩分機、料倉的振動防閉塞裝置等。廣泛應用于電力、機械、建材、礦山、鑄造、糧食、冶金、化工、港口等行業。三相異步振動電機特點
- 激振力與功率配合適當,機體質量輕、體積小 。
- 利用平穩的回轉產生振動力,噪聲低。
- 全封閉結構,外殼防護等級 IP54、IP55。
- 使用壽命長,軸承壽命 2極達5000小時,4、6、8極達10000小時。
- 只需調節偏心塊夾角,就可實現無級調整激振力。
- 三相異步振動電機可多機組合形成多種振動形式,滿足各種作業要求。
三相異步振動電機的使用條件
- 環境溫度: -15 ℃ ~+40 ℃ 絕緣等級: F 級
- 海 拔: <1000m 電源頻率: 50 Hz
- 電 壓: 380V 工作方式:連續 S1
- 接 法: Y/ △ 安裝方式:任意方向
型號舉例

技術參數

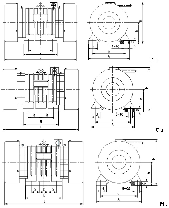
外型及安裝尺寸

注:用戶如在額定電源電壓、額定電源頻率、特別激振力、特別材質等方面有特殊要求時請詳細說明,本公司可按特殊要求制作。
引起三相異步振動電機振動值超標的原因很多,大致分為:
(1)機械方面的原因;
(2)電磁方面的原因;
(3)工作機帶給電動機的振動;
(4)電動機與工作機之間的聯軸器不同心
機械方面的原因主要有兩種:
(1)由于安裝原因:地腳緊固不牢,基礎臺面傾斜、不平;對輪偏差超值;
(2)電動機本身原因:軸承磨損、彎曲變形;定、轉子鐵芯磁中心不一致,轉子動平衡不良等。
電磁原因:三相異步振動電機是靠轉子繞組中電流和氣隙中基波旋轉磁通相互作用產生的電磁轉矩來轉動的,所以電磁方面的原因引起的振動值超標主要包括:
(1)由于電動機重繞后繞組接線錯誤,線圈匝間有斷路或開焊,轉子鼠籠松動或斷條,電動機接地等故障引起的三相電壓不平衡、三相電流不平衡、三相電阻阻抗不平衡,電動機不對稱運行。
(2)氣隙不對稱,基波及諧波磁通不平衡。
(1)機械方面的原因;
(2)電磁方面的原因;
(3)工作機帶給電動機的振動;
(4)電動機與工作機之間的聯軸器不同心
機械方面的原因主要有兩種:
(1)由于安裝原因:地腳緊固不牢,基礎臺面傾斜、不平;對輪偏差超值;
(2)電動機本身原因:軸承磨損、彎曲變形;定、轉子鐵芯磁中心不一致,轉子動平衡不良等。
電磁原因:三相異步振動電機是靠轉子繞組中電流和氣隙中基波旋轉磁通相互作用產生的電磁轉矩來轉動的,所以電磁方面的原因引起的振動值超標主要包括:
(1)由于電動機重繞后繞組接線錯誤,線圈匝間有斷路或開焊,轉子鼠籠松動或斷條,電動機接地等故障引起的三相電壓不平衡、三相電流不平衡、三相電阻阻抗不平衡,電動機不對稱運行。
(2)氣隙不對稱,基波及諧波磁通不平衡。